|  站内搜索:
网站首页 > 环球聚焦 > 新冠疫情 > 阅读信息
不服来辩,西安机场中央空调有传播病毒隐患!
点击:  作者:记者    来源:行业报告研究院 微信号  发布时间:2021-12-29 09:55:30

 

昨天我们公众号发布了凤凰网唐驳虎的观点,西安机场传染之谜,竟然通过通风管道传播!

 

他指出,西安咸阳机场T3航站楼使用的空调技术,可能造成了西安疫情“匪夷所思的病毒传播”。

 

 

文章中提到,咸阳机场T3航站楼是国内唯一一个应用置换下送风技术的民用机场航站楼。但也就是这个下送风回风结构,最终造成了西安机场出现最匪夷所思的病毒传播。中央空调、室内空气循环管道打通,导致原本位于国际北指廊一楼候车区域的病毒,被抽到了200多米外的二楼候机区域。因为管道是高速封闭流体,相当于气动投毒。

 

 

他认为,西安长安大学、东莞大朗最初出现的病例,也许就是在西安机场使用洗手间时,被空气管道送来的微量病毒传染。他表示,咸阳机场T3航站楼对暖通空调系统的末端供冷供热形式进行了改进研究,将地板辐射供热供冷,和下送风结构结合起来,这导致下送风结构中的回风“气动投毒”,使原本位于国际北指廊一楼候车区域的病毒,被抽到200余米外的二楼候机区域,在咸阳机场感染的四例患者被空气管道送来的新冠病毒传染。

 

 

在我们文章的评论区,引发了一些质疑之声

 

 

清华大学建筑学院副院长朱颖心质疑唐驳虎:完全是外行人的臆测

 

朱颖心教授在上述文章后的留言指出:“文章作者是完全外行人的臆测。咸阳机场T3航站楼的空调系统恰恰就是完全没有循环风的地板辐射加新风系统。下送风(或称置换通风)系统送的都是新风,没有回风。新风系统的任务是保障卫生要求,地板辐射是夏天降温冬天供暖。而作者把这种系统当做常规的次回风集中空调系统来说,完全就是南辕北辙。对于传染病防控来说,咸阳机场T3航站楼是比传统一次回风的中央空调系统更安全的方式,因为只有新风没有回风。”

 

 

朱颖心教授同时还是中国建筑学会暖通空调分会理事、国际室内空气学会科学院会士兼热舒适技术委员会主席。

 

朱颖心教授对唐驳虎所说的下送风回风结构回应如下:“西安咸阳机场应用的空调系统是“温湿度独立控制系统”,温度靠地板供暖或地板降温来调节,风管从建筑外部抽入新风,再从高度一米左右的出风口送入建筑内部,出风口设备高度大约相当于“人蹲在地上”。传统的“上送风”就是常见的远高于人们头顶的出风口,而下送风的出风口低于常人的身高,把新鲜空气送到人员逗留区,确保地面以上两米的空气温湿度适宜、干净卫生。需要防控传染病时,下送风由于不需要“循环”,反而更安全。”

 

 

此外,对于唐驳虎文章中提到的“气动投毒”(国际区的病毒被抽到了200多米外的二楼候机区),朱颖心教授表示:有工程师查看图纸发现,文章里说的200米,实际距离超过1000米。航站楼空间巨大,做空调设计时,基本原则是区域分开。以拥有3个航站楼的西安咸阳机场为例,可能需要几百上千个空调系统。无论传统的循环风系统还是新风系统,每一个空调系统负责的区域都是有限的。一般情况下,一个独立的空调系统最多负责1000平方米的范围,哪怕是循环风,也只会在这1000平米以内“转”,根本不可能有空调系统把几百米外的国际区指廊空气抽到国内区。

 

唐驳虎再发文回应《摊开设计图纸,西安机场真不是管道感染?》

 

朱教授参与了更新的大兴机场暖通空调和绿色节能设计,是暖通空调、绿色建筑和建筑科技专家。

 

但她认为西安机场风系统完全没有循环风,只送新风,没有回风。这是不对的。

 

 

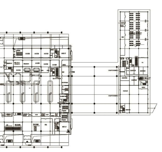
实际上,从西安机场T3航站楼的空调新风布置总图上就可以看出,风管系统内部就存在多部简单处理的回风处理机、空气处理机,乃至冬季使用的更简单粗暴的室内送、排风机。

 

 

在原布置图上,吸入室内原有空气的回风管路用蓝色表示,提供新供给风路的送风管路用绿色表示。

 

 

区域1原始图

 

区域2原始图

 

考虑到普通人较难看懂复杂的管道走向逻辑,用箭头红线代表旧空气,用箭头黄线代表简单处理后的内部回风,凸显示意如下:

 

 

区域1走向图

 

区域2走向图

 

因为除非传染病医院,一般建筑的置换通风,也不能是全置换、全新风。

 

纯新风的不叫空调,也不叫新风,叫换气扇,但这样能耗得多高啊?百分百新风,这属于违背常识了。

 

 

尤其冬季北方室内外温差较大(一般20℃),比夏季的室内外温差更大(一般小于5℃),更需要尽量利用室内热能,降低能耗。

 

这是一般情况下的正常设计思路,这大致可类比于“中水利用”。

 

 

实际上,西安机场T3航站楼的暖通总体设计,就是次回风空调+部分补入新风系统的组合。

 

而即使西安机场T3航站楼的新风系统,也存在理论上的安全隐患。因为采用的是溶液热泵新风机组(HVF-PF)

 

 

新风溶液调湿以及热回收模块,简称湿式换热换风。这也正是西安机场T3航站楼的暖通总体设计上的一项主要创新。

 

正如上一篇文章的分析,东莞感染者必然是在机场感染的,长安大学老师也极大概率是在机场感染的。

 

这有基因测序结果为铁证,是强有力的生物学证据。

 

而这个生物学证据和常识上国际航班的人员、时空闭环,粗看起来又相悖,成了早期溯源的头号疑问。

 

 

如果说,长安大学老师之后在西安内部还有多种可能的感染途径,124日当晚离开的东莞病例和源头PK854航班之间,只有短短一个多小时的重叠。

 

虽然同在机场,却隔着重重墙壁,空间阻隔、人员不通。

 

 

时间相重合,位置接近但不重合。只有远距投送的风路管道,才能解释得通病毒传播链条。

 

 “我吹过你吹过的晚风,那我们算不算相拥?”

 

算,当然算。尤其是特殊情况更算。

 

 

T3的具体设计单位,是中国建筑西北设计研究院(简称中建西北院)。

 

现在西北院和机场、疾控方面也在分析,是不是因为暖通问题导致的。

 

这需要具体查看图纸,核查管路走线,乃至用假病毒进行一次管路传播试验。

 

 

但实际上,早在今年10月,《中国疾控中心周报》的一篇文章就披露了一场在深圳宝安机场的现场模拟实验:

 

如果入境旅客与国内旅客在同一航站楼,虽然机场通过隔板将入境人员活动区与国内旅客活动区物理隔离。

 

但病毒气溶胶仍然可以通过中央空调系统的送风和回风进行远距离传播,从而带来机场疫情传播风险。

 

 

这可不是“绝无可能”。中国疾控中心环境卫生研究所已经做过实实在在的机场环境试验了,证明了是可能的。

 

疾控流调、建筑设计、机场运营,各专业部门还是应当加强信息的互联互通啊。

 

 

当然,单个新风系统一般没有很大的服务半径。

 

现在看来,东莞的感染者,可能也是在靠近国际指廊的办票大厅右侧/北侧区域感染的。

 

例如对机场位置不熟,没有径直前往国内办票的M区,而是误到了国际办票的G区,同时还使用了卫生间。

 

 

虽然没有传出1100米那么玄乎,传出100米、200米还是有的。

 

而且虽然T3国际指廊整体是2015年建成投入运营的。

 

但安置入境旅客、等待转运大巴的国际远机位夹层/一层部分,是随T3航站楼一期于2012年就建成的。因此新风系统管路存在共用的可能性。

 

来源:行业报告研究院微信号

 

责任编辑:向太阳
特别申明:

1、本文只代表作者个人观点,不代表本站观点,仅供大家学习参考;

2、本站属于非营利性网站,如涉及版权和名誉问题,请及时与本站联系,我们将及时做相应处理;

3、欢迎各位网友光临阅览,文明上网,依法守规,IP可查。

昆仑专题

高端精神

热点排行
  • 一周
  • 一月
  • 半年
  • 建言点赞
  • 一周
  • 一月
  • 半年
  • 图片新闻

    友情链接
  • 北京市赵晓鲁律师事务所
  • 186导航
  • 红旗文稿
  • 人大经济论坛
  • 光明网
  • 宣讲家网
  • 三沙新闻网
  • 西征网
  • 四月网
  • 法律知识大全
  • 法律法规文库
  • 最高人民法院
  • 最高人民检察院
  • 中央纪委监察部
  • 共产党新闻网
  • 新华网
  • 央视网
  • 中国政府网
  • 中国新闻网
  • 全国政协网
  • 全国社科办
  • 全国人大网
  • 中国军网
  • 中国社会科学网
  • 人民日报
  • 求是理论网
  • 人民网
  • 备案/许可证编号:京ICP备15015626号-1 昆仑策研究院 版权所有 举报邮箱:[email protected]
    携趣HTTP代理服务器